产品中心
8f92326ceb8c978
8f92326ceb8c978
氨水脱硫法

一、工艺原理 氨法原理是采用氨水作为脱硫吸收剂,与进入吸收塔的烟气接触混合,烟气中S02与氨水反应生成亚硫酸铵,经空气进行强制氧化反应生成硫酸铵溶液,经结晶、离心脱水、干燥后即制得硫酸铵化肥,氨法也是

联系我们
产品特点

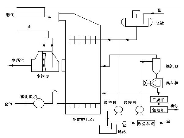
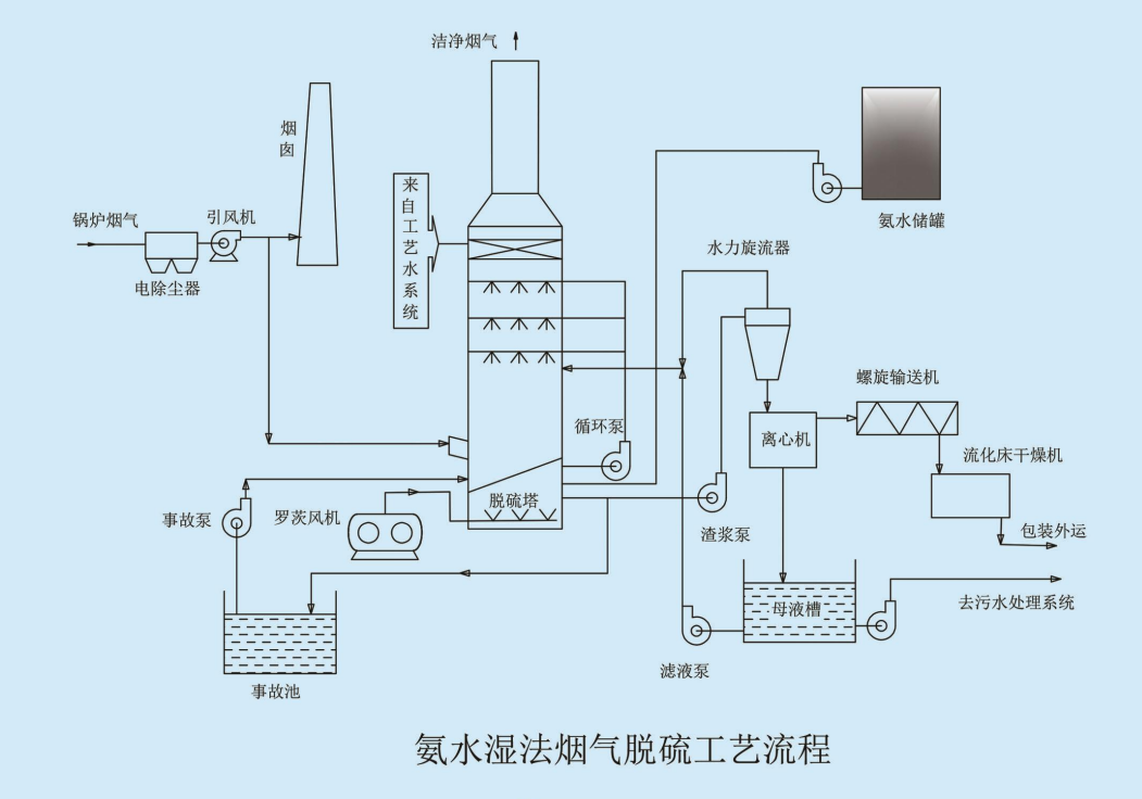
一、工艺原理 

氨法原理是采用氨水作为脱硫吸收剂,与进入吸收塔的烟气接触混合,烟气中S02与氨水反应生成亚硫酸铵,经空气进行强制氧化反应生成硫酸铵溶液,经结晶、离心脱水、干燥后即制得硫酸铵化肥,氨法也是一种技术成熟的脱硫工艺。


二、工艺流程图  

图片1


脱硫内部件

微信截图_20250408174420